Model Homes Open Mon - Sun

Solana

110 Willow View Loop, Davidson, NC 28036 |

Davidson Retreat

SOLD

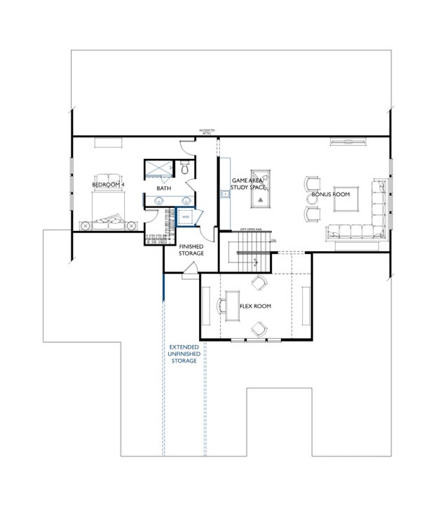
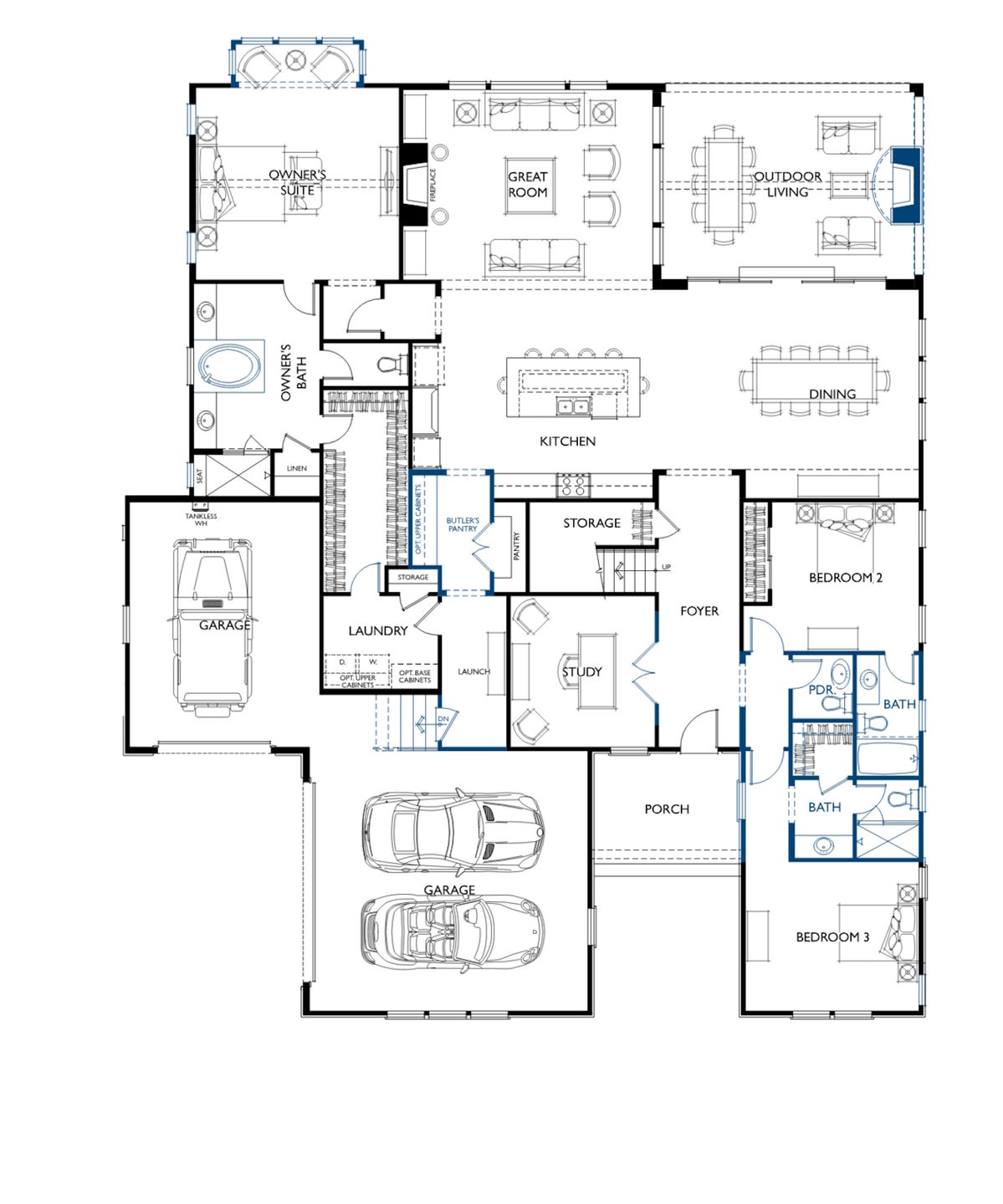
4,481 Sq Ft 4 Bed 4.5 Bath 3 Car Garage First Floor Primary Suite

This stunning Craftsman is located in Davidson Retreat, just minutes from shopping, dining, and recreation at Lake Norman. Luxurious and spacious are two words used to describe the Solana. An expansive Kitchen stretches wide to your Dining and overlooks the Great Room with its 12' ceilings. Stack open the doors and let the party spill out into the Outdoor Living Room. The Kitchen is a showpiece in itself with an oversized island that seats 6. A luxurious Primary Suite and elegant bath have connectivity to the laundry for everyday living ease. 2 more bedrooms with en-suite baths, Study w/French Doors, and large Drop Zone off the 3-car garage make for main floor living. An oversized Bonus Room w/Wet Bar, Flex Room, Secondary Bedroom with bath, and a laundry closet completes the second floor.    

Questions?
We're Here to Help

Fill Out The Form or Call. 704-997-3480

Custom Floor Plan

Virtual Tour

Finding a home you love can be fun!

Want to schedule an appointment or have questions?

Contact Us

Plan Your Visit

Property Address

1672 Shearers Road
Davidson, NC 28036

Sales Office Address

8108 Farm Crossing Lane
Huntersville, NC 28078

Mon & Wed - Sat 11am-6pm; Tues & Sun 1pm-6pm

To Stephens Farm I-77, West at Exit 25 onto Hwy 73. Travel 3.2 miles and take a left on Beatties Ford Rd. Travel 1.5 miles and take a right on Stephen Rd. Travel 0.7 miles and entrance is on the left. Follow the road to the Classica Boutique sign to the sales center to start your tour.


Highlights

  • Enclave of 6 homes on a private drive
  • Close to downtown Davidson, NC
  • Shopping, restaurants and more just minutes from home
  • Close to Davidson College

Iredell County Schools

  • Elementary School Coddle Creek
  • Middle School Woodland Heights
  • High School Lake Norman

Much to Do Around Davidson Retreat

Residents on Shearers Road will enjoy the convenience of downtown Davidson being 4.5 miles away. Visit the pedestrian friendly historic area for restaurants, galleries, local stores, and Davidson College.  Grocery shopping is a close 2.4 miles from your door, along with other convenient shopping and dining options.  Davidson Commons features restaurants, a hotel, schools, churches, and a nature preserve. The town of Davidson Parks & Recreation Department has year-round events, access to urban parks, trails, athletic facilities, and enhances the high quality of life in the community. 

New Home in Davidson, NC

Founded in 1837, Davidson College is located in the heart of Davidson, NC, its picturesque campus fosters intellectual curiosity and leadership.

4,481sf New Home in Davidson, NC

Downtown Davidson is a charming, walkable destination filled with locally owned shops, award-winning restaurants, and a vibrant community atmosphere.

9 Minutes Away
Davidson, NC New Home

River Run Country Club is only 7 min away.

7 Minutes Away
Davidson, NC New Home

Rocky River Greenway is a scenic trail that winds through lush natural landscapes.

8 Minutes Away

More Quick Move-Ins

Two-story white brick home with gray shutters and metal roof accents on wooded lot

Contact Us

We're ready to help you find a home you will truly love. Have questions for our sales team? Let's chat.
704-997-3480